自定中心振動篩產品標準
自定中心振動篩用途及特點
??SZZ型自定中心振動篩運動軌跡為圓,全系列共有十種規格,可供煤炭、冶金、建材、化工等部門,對中小粒度的物料進行干式分級。篩機結構簡單,堅固可靠,維修方便,效率高。
選用須知
??——篩機分單層和雙層,除了SZZ1800×3600振動篩外都為吊式。??——篩網結構有編織網和沖孔篩板。
??——電動機可安裝在左側或右側,無特殊要求按安裝圖安裝。
??——電動機額定電壓為380V,可選用防爆電機或不同額定電壓的電機,如選用請在訂貨時注明。
??——基礎螺栓由用戶自備。
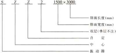
產品型號表示示例:
技術參數
| 型號 | 篩 面 | 給料粒度( mm ) | 處理量( t/h ) | 電動機 | 外形尺寸 長×寬×高 | 總重(kg) | |||||
| 層數 | 面積(m2) | 傾角( °) | 篩孔尺寸( mm ) | 結構 | 型號 | 功率(kw) | |||||
| SZZ800×1600 | 1 | 1.3 | 15 | 3-40 | 編織 | ≤100 | 8-45 | Y100L1-4 | 2.2 | 2167×1653×1110 | 498 |
| SZZ2800×1600 | 2 | 1.3 | 15 | 3-40 | 編織 | ≤100 | 8-45 | Y100L2-4 | 3 | 1935×1678×1345 | 822 |
| SZZ1250×2500 | 1 | 3.1 | 15 | 6-40 | 編織 | ≤100 | 36-106 | Y132S-4 | 5.5 | 2569×2110×1006 | 1021 |
| SZZ21250×2500 | 2 | 3.1 | 15 | 6-50 | 編織 | ≤150 | 36-117 | Y132M2-6 | 5.5 | 2635×2376×1873 | 1260 |
| SZZ21250×4000 | 2 | 5 | 15 | 6-50 | 編織 | ≤150 | 58-188 | Y132M-4 | 7.5 | 4184×2468×3146 | 2500 |
| SZZ1500×3000 | 1 | 4.5 | 20 | 6-50 | 編織 | ≤150 | 52-170 | Y132M-4 | 7.5 | 2866×2342×1650 | 2234 |
| SZZ1500×4000 | 1 | 6 | 20 | 6-50 | 編織 | ≤150 | 70-227 | Y132M-4 | 7.5 | 3951×2386×2179 | 2582 |
| SZZ21500×3000 | 2 | 4.5 | 15 | 6-50 | 編織 | ≤150 | 52-170 | Y132M-4 | 7.5 | 3050×2524×1855 | 2511 |
| SZZ21500×4000 | 2 | 6 | 20 | 6-50 | 編織或沖孔 | ≤150 | 70-227 | Y132M-4 | 7.5 | 4155×2754×2656 | 4022 |
| SZZ1800×3600 | 1 | 6.48 | 25 | 6-50 | 編織或沖孔 | ≤150 | 76-245 | Y180M-4 | 18.5 | 3750×3060×2541 | 4626 |
六、安裝尺寸:
| L | L1 | L2 | L3 | L4 | H | H1 | H2 | H3 | H4 | B | B1 | B2 | B3 | B4 | ||
SZZ800×1600 | 1990 | 1352 | 616 | 676 | 620 | 1110 | 620 | 700 | 25 | 145 | 1328 | 800 | 868 | 1042 | 140 | ||
SZZ2800×1600 | 1743 | 1217 | 284 | 608 | 460 | 1345 | 830 | 765 | 25 | 145 | 1328 | 800 | 888 | 1042 | 140 |
蘇公網安備 32062102000184號